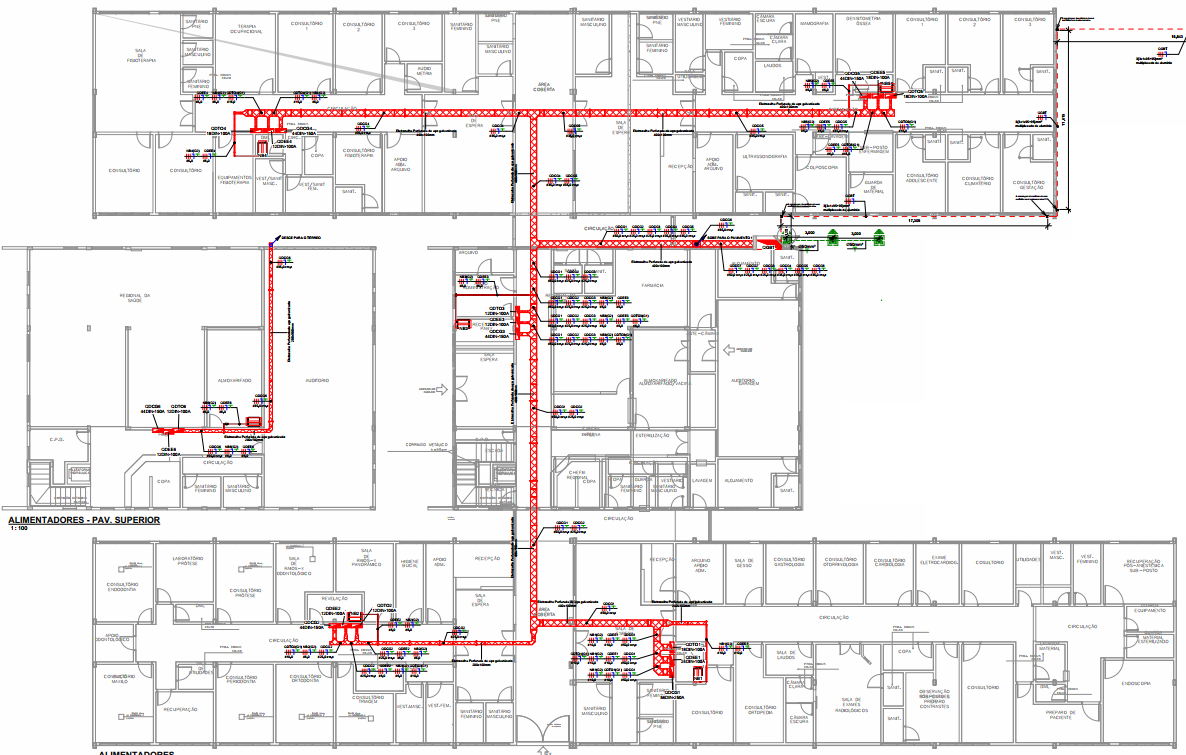
Hospital Maternidade em Ponta Porã – MS. Projetos da parte elétrica normal, estabilizada e sistema IT-Médico, cabeamento estruturado, automação, subestação elétrica, SPDA, elétrica para incêndio e CFTV (segurança).Hospital da Base Aérea em Campo Grande – MS. Projetos as-built da parte elétrica normal, estabilizada e sistema IT-Médico, cabeamento estruturado, automação e CFTV (segurança). Veja abaixo alguns detalhamentos inseridos em projeto:Centro de Especialidades Médicas em Aquidauana – MS. Projetos da parte elétrica normal e estabilizada. Veja abaixo alguns detalhamentos inseridos em projeto:
agora você já entendeu que um projeto elétrico bem elaborado é importantíssimo para o seu estabelecimento de saúde, certo? solicite um orçamento gratuitamente clicando no botão abaixo!